Viviendas Tradicionales

Características Técnicas

Nuestras cabañas poseen un diseño novedoso, hermoso y a la vez tradicional, permitiendo que tu casa sea tu hogar ideal, destacado por sus medios troncos en su exterior y conservando su comodidad en el interior.

Nuestros modelos de casa tradicionales, cuentan con un diseño hermoso, cálido y moderno, ideal para la familia. En el interior se encuentra revestido con placas de yeso y el exterior con fibrocemento, cada dormitorio con su ventana, brindando una excelente iluminación y ventilación. Los techos pueden realizarse a gusto, tanto a un agua o a dos, ambos con cieloraso, lo que permite mayor calidez.

<----- Enviar foto Modelos Tradicionales

<-----Faltan Planos + Fotos varios modelos tradicionales de ejemplo

Garantía en TODOS los trabajos.

Precios y Financiamientos

Los precios varían segun metraje y modelo.
Financiamiento ajustable.
Financiamiento acorde a la entrega de la inicial.
Consulte por financiamiento extendido.

Algunos de Nuestros Modelos

Contamos con Desarrollos para cada Tipo de Necesidad y Metraje

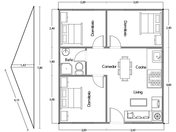
Modelo: Tradicional 3564

Ambientes: 3 | Mts.: 35.64 | Tiempo de producción: 90 días

Modelo: Tradicional 4716

Ambientes: 3 | Mts.: 47.16 | Tiempo de producción: 90 días

COMENCEMOS A CONSTRUIR TU SUEÑO!

Dónde estamos

DIRECCION

Telefonos

Tel:11 7625-6904

Envianos tu consulta


Creado por LesDuit